
HOME SWEET HOME
This project was born from the desire to create an apartment with limited dimensions that could still express a personal and distinctive style.
I envisioned this space as if it were my own: an environment that embodies everything I love, a welcoming, elegant, and functional home. The atmosphere of the project is warm and harmonious, achieved through a predominantly light color palette, with accents of more vibrant hues to add energy and character to the space. Premium materials, such as refined marble and high-quality wood, were selected to create a sophisticated yet timeless and inviting environment.
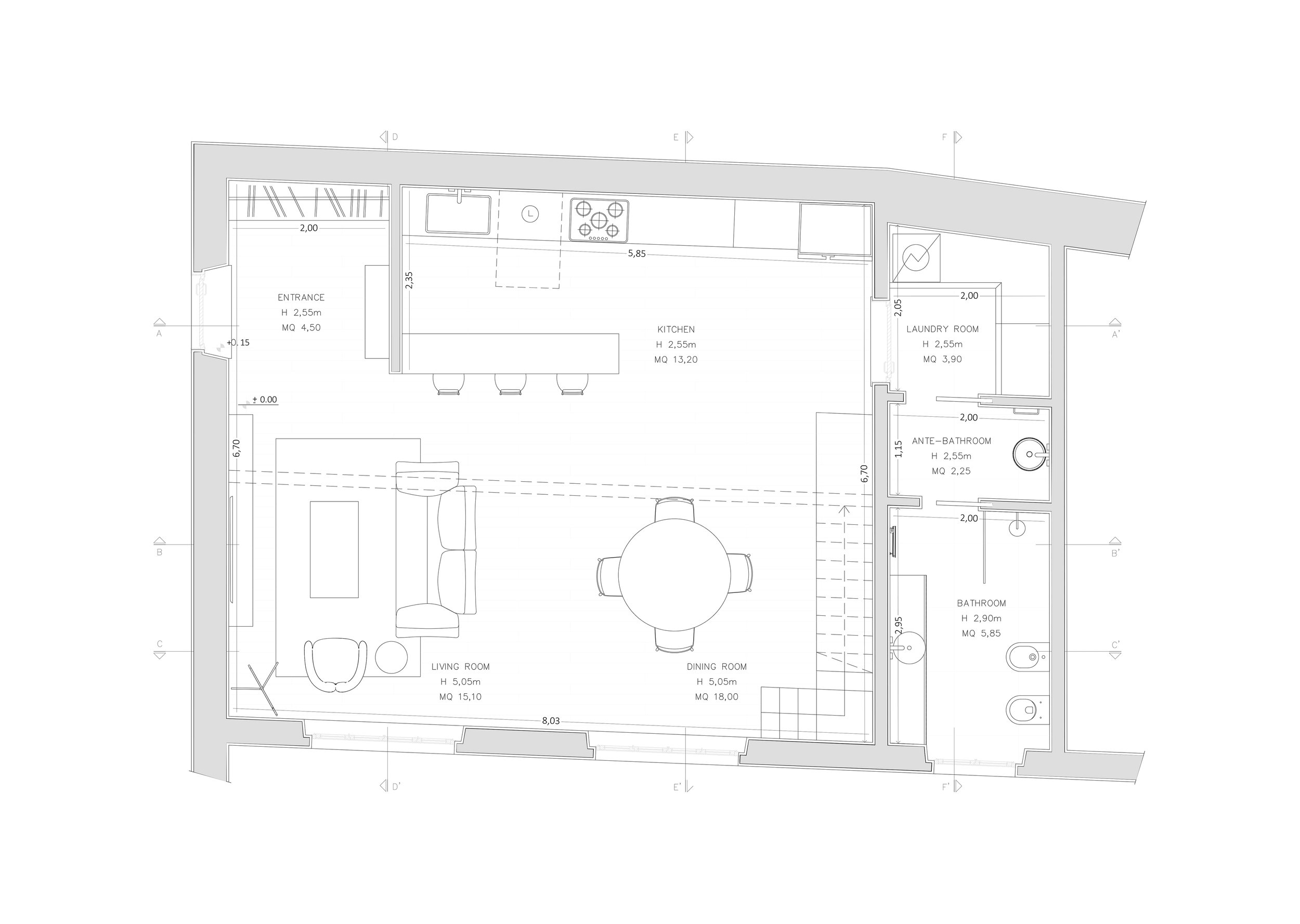
The apartment is spread across two levels, optimizing every square meter to ensure both functionality and comfort: The main floor hosts the heart of the home, designed as an open space that integrates multiple functions. The cozy and bright living area is combined with a modern kitchen featuring a small peninsula, perfect for quick breakfasts or moments of conviviality. The dining area is simple yet elegant, designed to welcome guests in an intimate atmosphere. On this floor, there is also a guest bathroom, a small powder room, and a laundry area — essential spaces that provide practicality without compromising the overall aesthetic.
The loft houses the sleeping area, conceived as a true private retreat. The bedroom, furnished with warm tones and elegant details, is complemented by a functional and well-organized walk-in closet. Next to it, I designed a study area — a calm and inspiring space, perfect for work or moments of reading and reflection. The project combines aesthetics and functionality, creating an apartment that is not only beautiful to live in but also meets all daily needs.
Every detail has been carefully designed to convey warmth and harmony, with spaces that adapt to various requirements without sacrificing comfort or design.
This apartment is a statement of style: a perfect balance between practicality, premium materials, and a welcoming atmosphere that reflects the personality of its inhabitant.

Entrance

Living Room

Kitchen

Bedroom